In That Quiet Earth Total Environment
Off Hennur Main Road, Bangalore
In that Quiet Earth believe in creating holistic spaces with a powerful combination of craftsmanship and technology.
STARTING AT
₹ 4.08 Cr*
Get in Touch
In That Quiet Earth Total Environment Overview
2,3 & 4 BHK Homes
2490 - 3650 Sq. Ft.
₹ 4.08 Cr* Onwards
In That Quiet Earth Total Environment is currently building an apartment complex called In That Quiet Earth in Bangalore’s quickly growing Hennur neighbourhood.
The greatest in luxury, safety, amenities and a host of other necessities are all included in this residential development in east Bangalore, which is surrounded by stunning scenery.
Top-tier industry architects expertly crafted the Apartment to provide its residents with the ideal living areas.
With stunning design and a comparable lifestyle, In That Quiet Earth Total Environment is sure to provide the community of Hennur with a quality living experience. One of India’s top real estate developers, Total Environment has created some of Bangalore’s most famous individuals over the past few decades.
In That Quiet Earth Total Environment is a magnificent 3 BHK apartments ad row villas in Hennur with opulent exteriors and interiors.
- You will find spacious luxury 3BHK L21 apartments and villas with exclusive features
- Enjoy the biodiversity under beautiful landscapes making it more special and Elite
- The location has excellent connectivity.
- Each villa has 4 private gardens
- For the first time, the project offers a relaxing walk among treetops of 200m
- 50,000 square feet clubhouse with infinity amenities
- Terrace garden with every apartment
- Discover the open kitchen with the breakfast counter
- Deck with double-height terrace garden
Why Choose In That Quiet Earth Total Environment In Bangalore
-
- Apartments with three sides that are open
- Good connectivity to the Thanisandra main road
- Each apartment has seperate office room
- Depending on the owner’s preferences. Each home has its terrace garden, water body, and deck.
- The Kitchen is equipped with cupboards, a stove, a smokestack, and a dishwasher.
In That Quiet Earth Total Environment Floor Plan
Price & Payment Plan
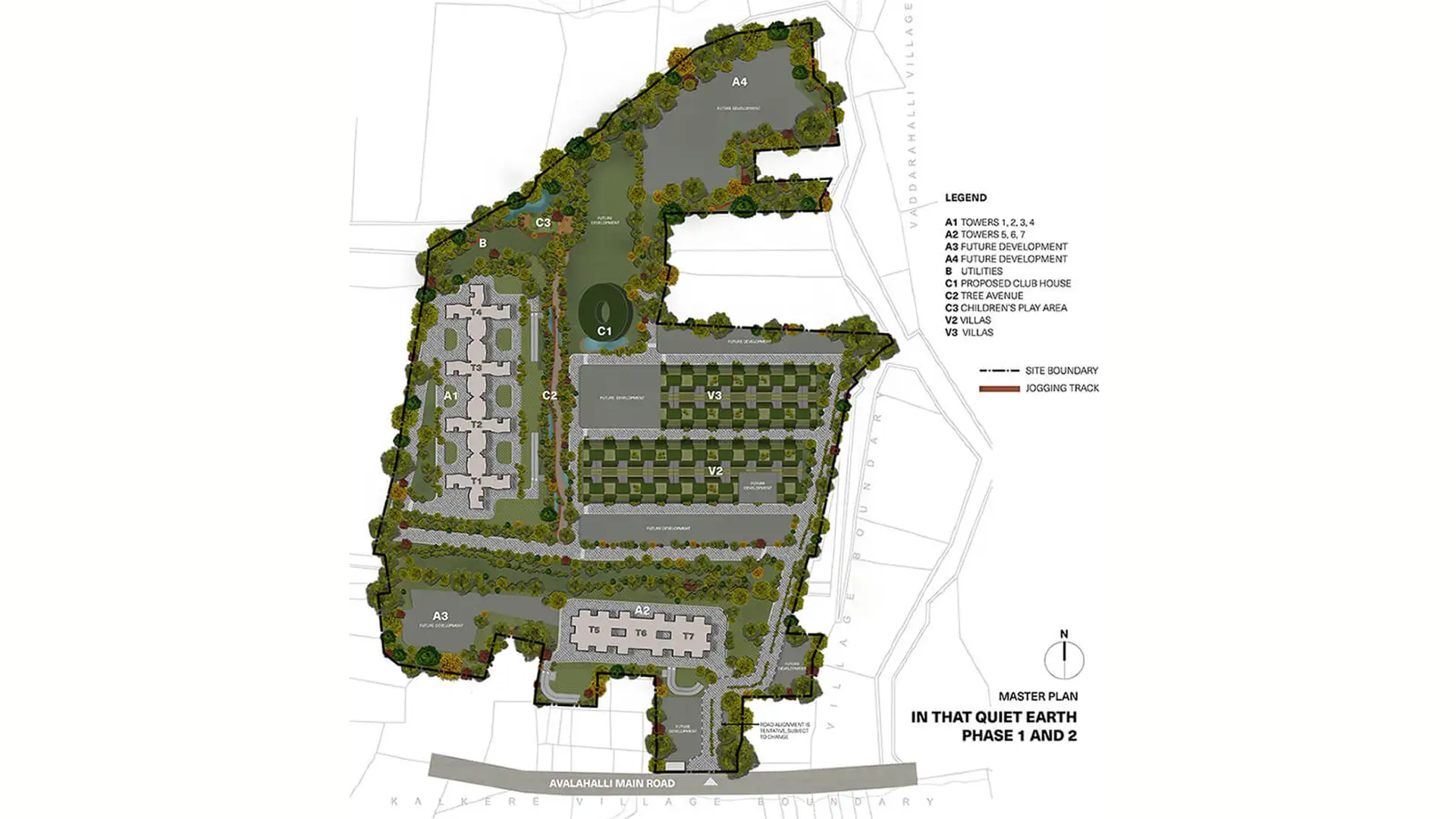
MASTER PLAN
DETAIL PRICING
Amenities
Mini Theatre
Landscaped Gardens
Gymnasium
Swimming Pool
Children's Play Area
Club House
Location Advantage
- Located 9.7 kilometres away from Bengaluru is the Courtyard by Marriott at No. 2, 55, Outer Ring Rd, Jogappa Layout.
- Elements Mall is located on Survey Nos. 132(P), 133(P), and 134(P), a 100′ wide Thanisandra major road, in the 5th Block of MS Ramaiah North City, Kasba Hobil, and Nagavara Village, in Bengaluru, 8.6 kilometres away.
- Off Hennur-Bagalur Main Road (New, International Airport Link Road), Bidarahalli Hobli, Legacy School – 6/1A, 6/2 Byrathi Village, Bengaluru – 3.8 Km
- Augusta Golf Village, Bengaluru’s Augusta Road, is 2.8 kilometres away.
- Hennur Bagalur Road, Kothanur Post, Geddalahalli, Bengaluru – Bangalore International School – 4.7 km
- Bengaluru’s Bellary Rd and Kirloskar Business Park’s Columbia Asia Hospital are 13.7 km away.
Frequently Asked Questions (FAQs)
What are starting prices of In that Quiet earth apartments?
The price of the 3.5 BHK apartments of In that quiet earth begins from Rs. 4.08 cr. The price might vary according to your preferences.
What are the starting prices of In that Quiet earth villas?
In that Quiet earth, villas are sold out. However, the location of the thoughtful design sits off Hennur road, the price may vary from location to location.
Where is the exact location of Total Environment In that Quiet Earth?
In that Quiet Earth, the project is located in the Off Hennur Road Bangalore area that has prospered both as an economic center and as a favourite among the autonomous suburbs that are an excellent place to live and work.
What special amenities are offered by the Total Environment In that Quiet Earth?
With all the necessary amenities, you will find landscape gardens, equipped clubhouse, a gymnasium, landscaped gardens, a children’s play area and 24/7 security.
Are Total Environment apartments fully furnished?
Yes, there is an option of a fully furnished property with all the amazing amenities.
Is the total environment project has any registration number?
Yes, the total environment projects have a registration number. RERA-registered societies have access to project details and other important information via state RERA portals.
RERA No.- (Phase 1: PRM/KA/RERA/1251/446/PR/180519/001745, Phase 2a: PRM/KA/RERA/1251/446/PR/201001/003630, Phase 2b : PRM/KA/RERA/1251/446/PR/060722/005044)
